About 5802 Samantha Drive
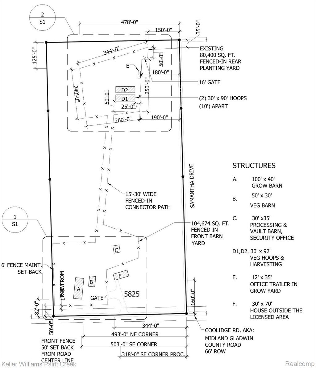
Municipality-approved green-zoned outdoor grow facility also includes 9000 sq ft indoor Marihuana grow opportunity. Includes 2 class C licenses. 5 acres of fenced in irrigated land setup for outdoor grow. Situated on 20.02 wooded acres across five parcels, this property offers a unique opportunity for serious growers and investors. Property Features: Two 30' x 100' Greenhouses – fully equipped. 200-amp power service on one parcel, plus an additional 1,400 amps in a professionally built-out steel building. All equipment included. 3-Bed, 1.5-Bath Ranch Home – features hardwood floors, a covered porch for relaxing, and the perfect mix of comfort and function Additional Details: Pre-approval or proof of funds required prior to showing. Peaceful, private, and wooded setting while still accessible—just about 2 hours north of Detroit. Everything is included in the sale.
Features of 5802 Samantha Drive
| MLS® # | 20251033110 |
|---|---|
| Price | $649,000 |
| Bathrooms | 0.00 |
| Square Footage | 1,560 |
| Acres | 5.00 |
| Type | Commercial |
| Status | Active |
Community Information
| Address | 5802 Samantha Drive |
|---|---|
| Area | 26121 - Beaverton Twp |
| City | Beaverton city |
| County | Gladwin |
| State | Michigan |
| Zip Code | 48618 |
Amenities
| Is Waterfront | No |
|---|---|
| Has Pool | No |
Interior
| Fireplace | No |
|---|
Exterior
| Construction | Other |
|---|---|
| Foundation | Basement, Block |
School Information
| District | Beaverton |
|---|
Additional Information
| Foreclosure | No |
|---|---|
| Short Sale | No |
| RE / Bank Owned | No |
Listing Details
| Office | Keller Williams Paint Creek |
|---|---|
| Contact Info | joe@TheDeliaGroup.com |
